40a Ross Street Toorak VIC

  • 4
  • 3
  • 3
Luxury Living In Toorak Village
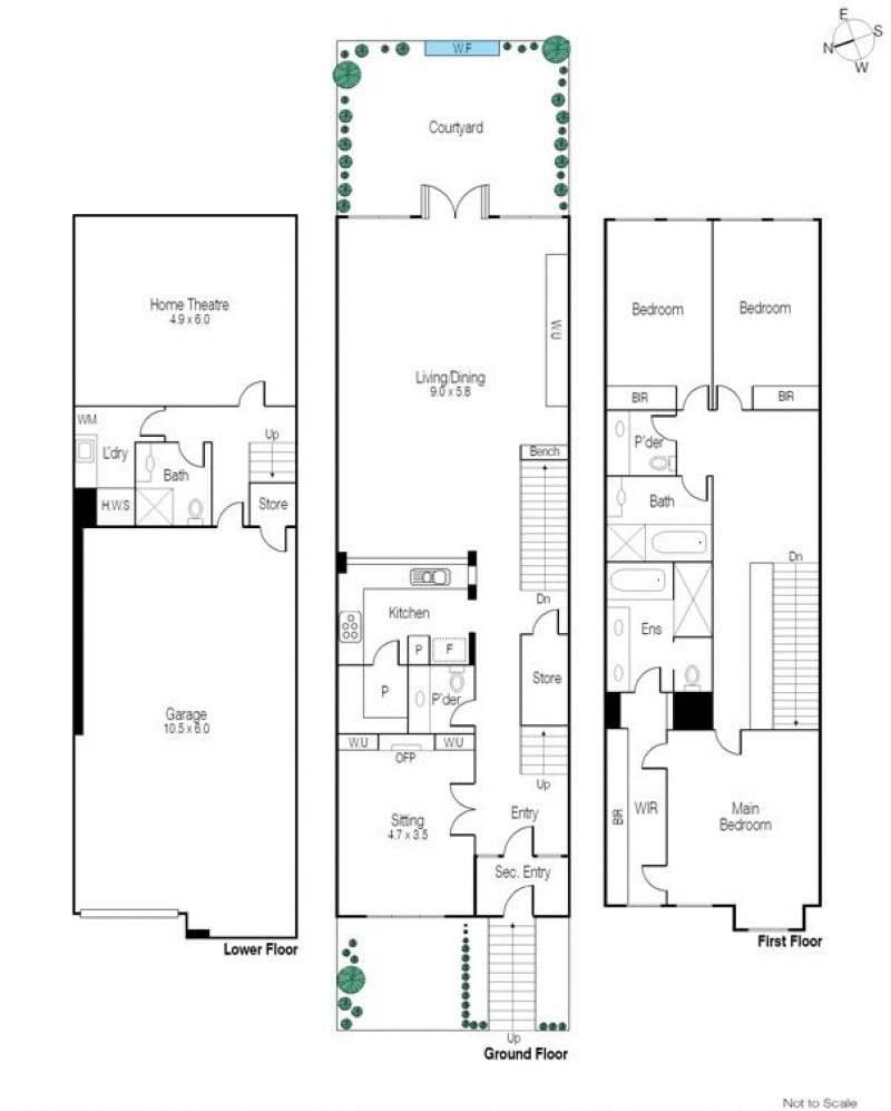
Every space and each facet of this refined contemporary residence conveys a level of luxury and a commitment to quality that's entirely in keeping with its desirable location, only one minute's walk from the retail and restaurants that define Toorak Village. Behind a striking façade a wide entry welcomes you to lovely home office/bedroom, luxurious powder room, the light filled formality of the sitting is complemented by the family friendliness of large living and dining areas that include a stone kitchen with walk in pantry while to the rear, a private landscaped courtyard is ideal to entertain friends and family. Upstairs you will find an open landing, three bedrooms, central bathroom, main with WIR and ensuite. On the brilliant basement level, a theatre room/further bedroom/gymnasium with its own bathroom offer additional accommodation options. Heating and cooling provide total comfort while three car garage, limestone floors, timber shutters, plenty of storage and separate laundry completes the picture. Walk everywhere satisfaction. Strictly by appointment only.
  • House
  • Now

Agent Details

Nina Mehegan

P: 03 9676 9777

M: 0460 421 000

Make an Enquiry