105B Victoria Road HAWTHORN EAST VIC
- 3
- 3
- 2
Low On Maintenance, High On Living
A brilliant combination of uncompromising quality and contemporary sophistication is the outstanding result of this cleverly designed tri-level townhouse in prized Hawthorn East location.
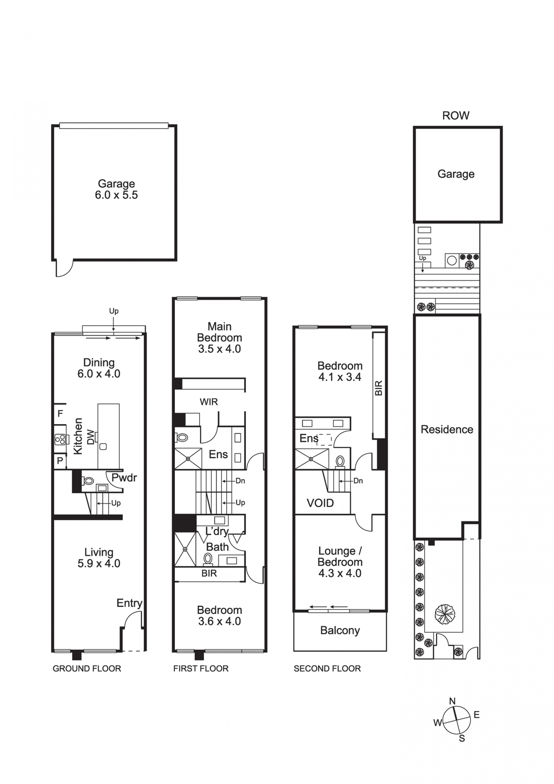
Impressing from inside and out, this exclusive residence features: three stylish bedrooms with living or fourth bedroom option and three lavish bathrooms with stone top vanities and frameless, walk-in rainwater showers.
A showplace of sheer indulgence, the master suite with deluxe ensuite, walk-in robe and private balcony exudes a quiet ambience.
Unequivocally in a class of its own, this standout property offers multiple living zones, perfect for relaxed or grand-style entertaining.
Appointed to leading edge standards and ideally located to service the dining/living domain, the premium kitchen makes a bold statement with its: stone meals bar, Miele induction hotplate/oven, quality soft closing cabinetry, integrated dishwasher and refrigerator.
Floor-to-ceiling glass stacking doors open to the attractive alfresco courtyard, seamlessly connecting the indoor/outdoor zones.
Crafted for comfort, it comes with an impressive list of inclusions: automated double garage, study nook, European laundry, ducted heating/cooling, floorboards, carpets, paneled fitted robes, coded entry/intercom/alarm, quality fittings and landscaped garden.
In a sought-after location with quick access to: Camberwell Junction/Auburn/Glenferrie Road cafes/shopping precincts, private schools, Burke Road tram, Camberwell station and parklands.
Inspection by Private Appointment.
Impressing from inside and out, this exclusive residence features: three stylish bedrooms with living or fourth bedroom option and three lavish bathrooms with stone top vanities and frameless, walk-in rainwater showers.
A showplace of sheer indulgence, the master suite with deluxe ensuite, walk-in robe and private balcony exudes a quiet ambience.
Unequivocally in a class of its own, this standout property offers multiple living zones, perfect for relaxed or grand-style entertaining.
Appointed to leading edge standards and ideally located to service the dining/living domain, the premium kitchen makes a bold statement with its: stone meals bar, Miele induction hotplate/oven, quality soft closing cabinetry, integrated dishwasher and refrigerator.
Floor-to-ceiling glass stacking doors open to the attractive alfresco courtyard, seamlessly connecting the indoor/outdoor zones.
Crafted for comfort, it comes with an impressive list of inclusions: automated double garage, study nook, European laundry, ducted heating/cooling, floorboards, carpets, paneled fitted robes, coded entry/intercom/alarm, quality fittings and landscaped garden.
In a sought-after location with quick access to: Camberwell Junction/Auburn/Glenferrie Road cafes/shopping precincts, private schools, Burke Road tram, Camberwell station and parklands.
Inspection by Private Appointment.