27 Weir Street RYE VIC
- 3
- 1
- 4
Rare Blue Chip Coastal Opportunity
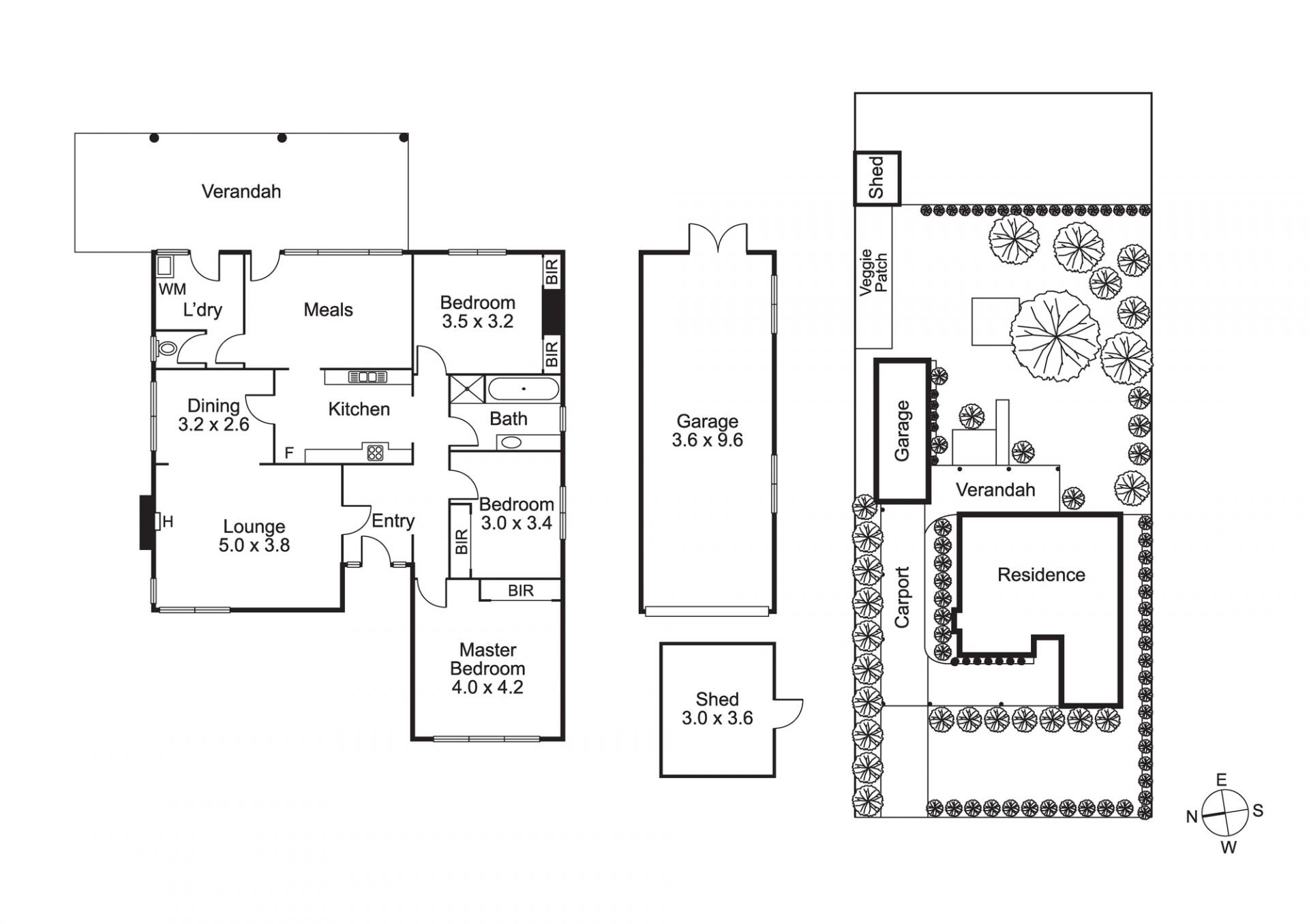
Exceptional Coastal Location, this original Rye beach house on a 1014 sqm (approx.) level allotment, is exceptionally located just metres to the foreshore and shopping precinct. Presenting a rare opportunity to subdivide or redevelop (STCA),
the existing house is comfortably appointed and could provide the ideal base to plan the property's future. It features original polished timber flooring, three bedrooms with BIRs including a good-sized master and the living room which looks out to the covered front verandah. A classic tiled and timber kitchen, family bathroom with separate shower, laundry and toilet complete the layout. Outside, a stunning botanical border lines a long, covered driveway, with room to accommodate at least four vehicles including a boat and/or caravan. The traditional 'quarter-acre-block' back garden, with veggie patch, fruit trees, hills hoist, sheds and paved dining/BBQ area harks back to long summer days and games of backyard cricket. Just a few steps to the beautiful Rye front beach, a choice of cafes, restaurants, bars, boutiques and supermarkets are within a 5-10 minute walk. A short drive away you'll find more of the Southern Peninsula's famous attractions including ocean beaches, golf courses, hot springs, wineries and breweries.
the existing house is comfortably appointed and could provide the ideal base to plan the property's future. It features original polished timber flooring, three bedrooms with BIRs including a good-sized master and the living room which looks out to the covered front verandah. A classic tiled and timber kitchen, family bathroom with separate shower, laundry and toilet complete the layout. Outside, a stunning botanical border lines a long, covered driveway, with room to accommodate at least four vehicles including a boat and/or caravan. The traditional 'quarter-acre-block' back garden, with veggie patch, fruit trees, hills hoist, sheds and paved dining/BBQ area harks back to long summer days and games of backyard cricket. Just a few steps to the beautiful Rye front beach, a choice of cafes, restaurants, bars, boutiques and supermarkets are within a 5-10 minute walk. A short drive away you'll find more of the Southern Peninsula's famous attractions including ocean beaches, golf courses, hot springs, wineries and breweries.