2 Gull Court RYE VIC
- 3
- 2
- 4
Tranquil Garden Retreat with Back Beach Backdrop
Set in a tranquil Rye coastal court, just metres behind the Back Beach dunes on a parklike 1569 sqm (approx.) block, this spacious 3-4-bedroom modern brick family home, surrounded by manicured gardens, is perfectly set up for relaxed indoor/outdoor Peninsula living.
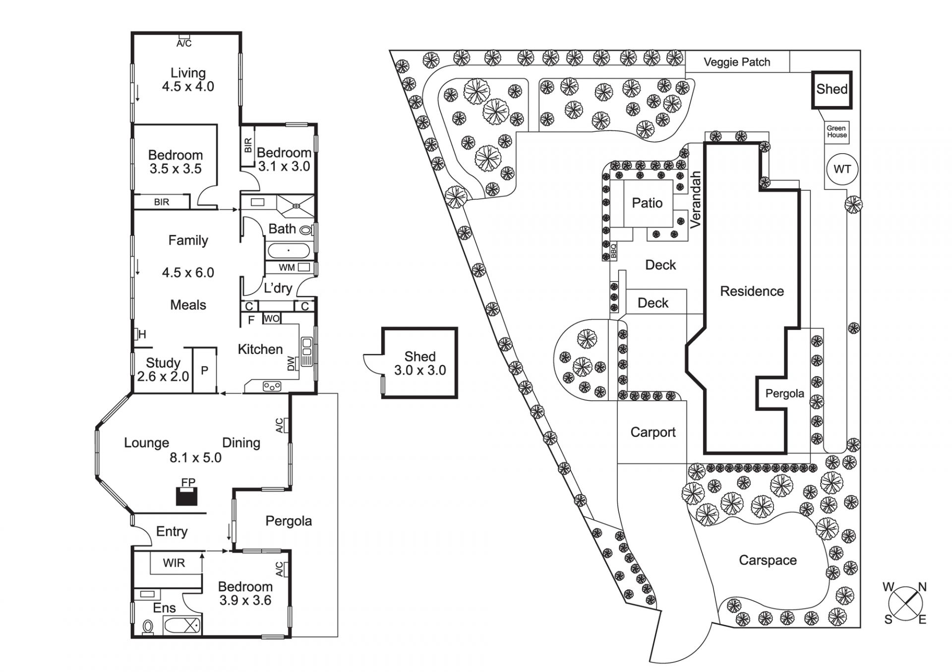
The solidly built home has a flexible layout which could be configured to suit multi-generational family living or to accommodate guests. The front section of the home comprises the tiled entry which leads to the main bedroom with WIR, split system A/C and ensuite, and a living area with gas log fire and a large bay window framing a garden outlook. The adjacent dining area opens out to a private courtyard. The central kitchen has Westinghouse cooking appliances including an electric cooktop. There is a good-size study off the central living area which has sliding glass doors opening to the large alfresco deck and covered BBQ area. A hallway leads to a further two bedrooms with BIRS, the family bathroom, plus another living area/retreat (or additional bedroom) with sliding door access to deck.
Superbly set up to live 'the good life', with the constant sound of the ocean in the background, the home is surrounded by beautifully manicured lawns and a series of 'garden rooms' including ornamental beds and a productive vegetable garden. There is a large double car port with room for a boat or caravan, plus plenty of OSP, a 5000-litre water tank plus 24 roof-top solar panels and battery storage for reduced power bills. It's an easy stroll to the beach and local shops, while golf courses, hot springs, wineries, restaurants, and front beaches are just a short drive away.
The solidly built home has a flexible layout which could be configured to suit multi-generational family living or to accommodate guests. The front section of the home comprises the tiled entry which leads to the main bedroom with WIR, split system A/C and ensuite, and a living area with gas log fire and a large bay window framing a garden outlook. The adjacent dining area opens out to a private courtyard. The central kitchen has Westinghouse cooking appliances including an electric cooktop. There is a good-size study off the central living area which has sliding glass doors opening to the large alfresco deck and covered BBQ area. A hallway leads to a further two bedrooms with BIRS, the family bathroom, plus another living area/retreat (or additional bedroom) with sliding door access to deck.
Superbly set up to live 'the good life', with the constant sound of the ocean in the background, the home is surrounded by beautifully manicured lawns and a series of 'garden rooms' including ornamental beds and a productive vegetable garden. There is a large double car port with room for a boat or caravan, plus plenty of OSP, a 5000-litre water tank plus 24 roof-top solar panels and battery storage for reduced power bills. It's an easy stroll to the beach and local shops, while golf courses, hot springs, wineries, restaurants, and front beaches are just a short drive away.