88 Golf Parade Rye VIC
- 5
- 2
- 2
Elevated Coastal Living with Mediterranean Soul
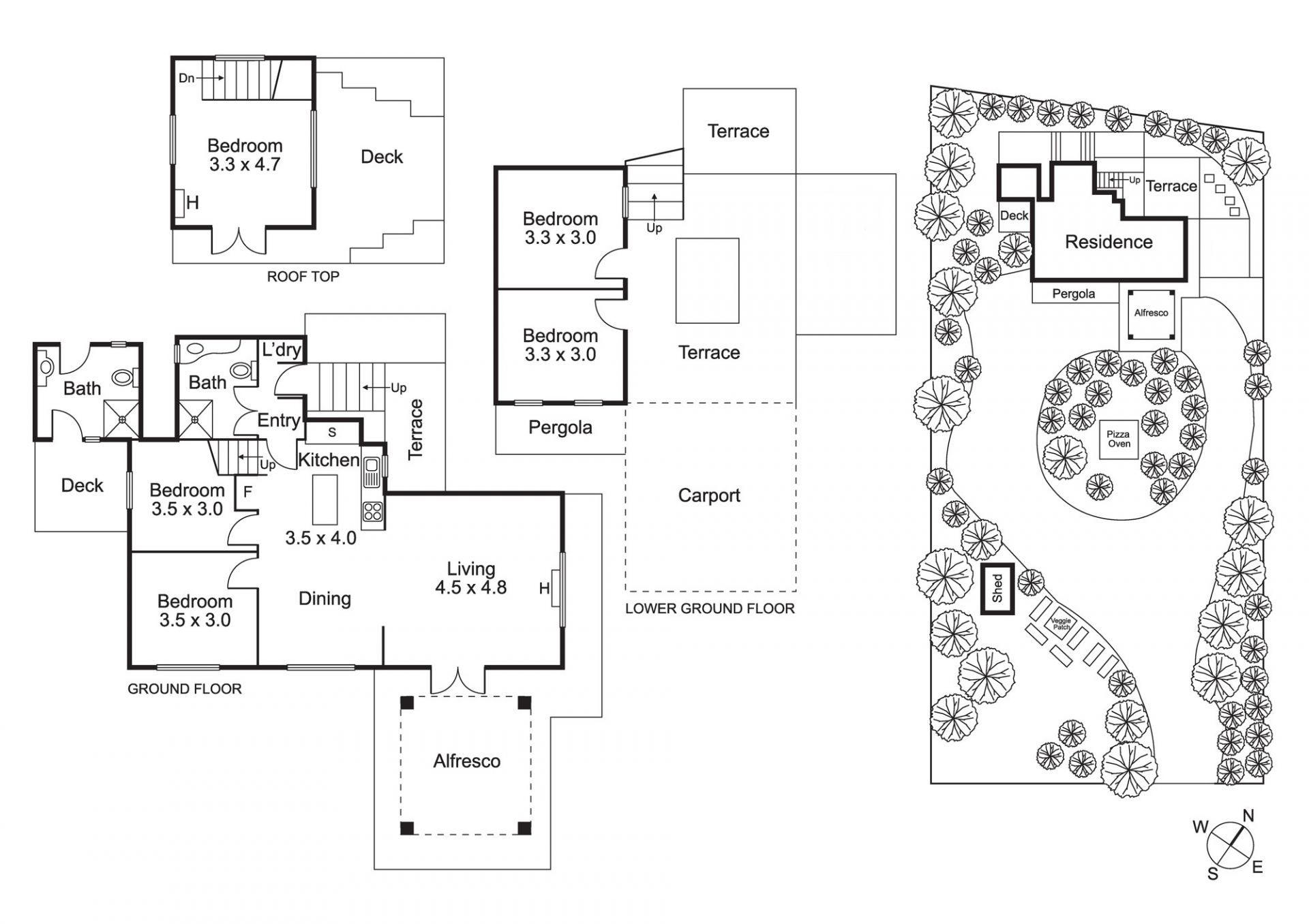
Perched on Rye's highest point and set on a generous 1,061sqm (approx.) allotment, this enchanting tri level Mediterranean inspired villa captures mesmerising coastal views and a truly distinctive Peninsula lifestyle.
Circa 1950s and rich in Mediterranean character, the home has recently been refurbished and beautifully re styled as an indulgent coastal retreat, blending old world charm with a relaxed, contemporary beachside vibe. Original features abound, including ornate cast iron windows, doors and balustrades, slate and timber flooring, and panelled walls and ceilings.
The central living zone opens seamlessly to a large outdoor terrace, ideal for BBQs or sun drenched brunches amid leafy outlooks across native Moonah trees and Mediterranean inspired gardens. Adjoining the kitchen is a charming dining nook with a window seat, while an ornate timber staircase leads to the top floor bedroom, complete with sea views and a private rooftop deck.
Across the lower levels are four additional bedrooms and two stylishly refurbished bathrooms, offering flexibility for family living or guest accommodation.
Outdoor entertaining is a highlight, with multiple alfresco zones including an exquisite original wood fired pizza oven set within an idyllic walled courtyard flanked by olive trees, plus a fire pit area with outdoor shelter for year-round enjoyment.
Additional features include split system heating and cooling, under-house storage, laundry, ample off street parking with undercover carport and front turning circle.
Perfectly positioned just a 15 minute walk to Rye front beach, shops and cafés, and only a short drive to Peninsula Hot Springs, ocean beaches and renowned wineries, this is a rare opportunity to secure a character-filled coastal sanctuary in one of the Mornington Peninsula's most sought-after locations.
Circa 1950s and rich in Mediterranean character, the home has recently been refurbished and beautifully re styled as an indulgent coastal retreat, blending old world charm with a relaxed, contemporary beachside vibe. Original features abound, including ornate cast iron windows, doors and balustrades, slate and timber flooring, and panelled walls and ceilings.
The central living zone opens seamlessly to a large outdoor terrace, ideal for BBQs or sun drenched brunches amid leafy outlooks across native Moonah trees and Mediterranean inspired gardens. Adjoining the kitchen is a charming dining nook with a window seat, while an ornate timber staircase leads to the top floor bedroom, complete with sea views and a private rooftop deck.
Across the lower levels are four additional bedrooms and two stylishly refurbished bathrooms, offering flexibility for family living or guest accommodation.
Outdoor entertaining is a highlight, with multiple alfresco zones including an exquisite original wood fired pizza oven set within an idyllic walled courtyard flanked by olive trees, plus a fire pit area with outdoor shelter for year-round enjoyment.
Additional features include split system heating and cooling, under-house storage, laundry, ample off street parking with undercover carport and front turning circle.
Perfectly positioned just a 15 minute walk to Rye front beach, shops and cafés, and only a short drive to Peninsula Hot Springs, ocean beaches and renowned wineries, this is a rare opportunity to secure a character-filled coastal sanctuary in one of the Mornington Peninsula's most sought-after locations.